2025年11月27日 更新
次回更新予定日:2025年11月28日
小菅1丁目~小菅4丁目新築戸建て
会員登録をして頂きますと、会員限定の物件を見られるパスワードやご希望に合う物件をメールでお知らせします。
会員専用ページを見る
希望条件を登録して、会員登録をする
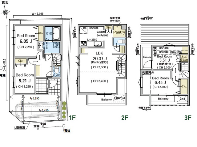
小菅1丁目~小菅4丁目新築戸建て:間取一覧
駅名別一覧
写真一覧
地図一覧
地域一覧
絞り込み条件を設定する
価格
下限
2500
2700
2900
3100
3300
3500
3700
3900
~
上限
3600
3800
4000
4200
4600
5000
5500
6000
万円
駅徒歩
-
10
13
15
16
17
18
20
25
分まで
土地面積
下限
40
60
65
70
75
80
85
90
95
100
~
上限
80
85
90
95
100
105
110
㎡
建物面積
下限
70
75
80
85
90
95
~
上限
98
100
102
104
106
㎡
現況
完成済物件のみ
絞り込み実行
解除
新築戸建
6,280万円
▲ページトップ
足立区新築戸建て情報館/仲介手数料無料
/
葛飾区新築戸建て情報館/仲介手数料無料